
solgt






solgt
Lakolk 166, Lakolk, 6792 Rømø
I det attraktive sommerhusområde Lakolk sælges hyggeligt sommerhus på 120 m2.
I det attraktive sommerhusområde Lakolk sælges hyggeligt sommerhus på 120 m2. Opført i 1927/1971 samt moderniseret i 2023. Huset har et grundareal på 262 m2. Udlejning til husejer for 2025 foreløbig 152.858 kr. Opvarmning sker ved elvarme, brændeovn og varmepumpe. Antal soverum 4. Hyggelig overdækket terrasse. Kun 185 m til stranden. Kun 800 m til indkøb, restauration, pizzariaer på Lakolk Butikscenter.
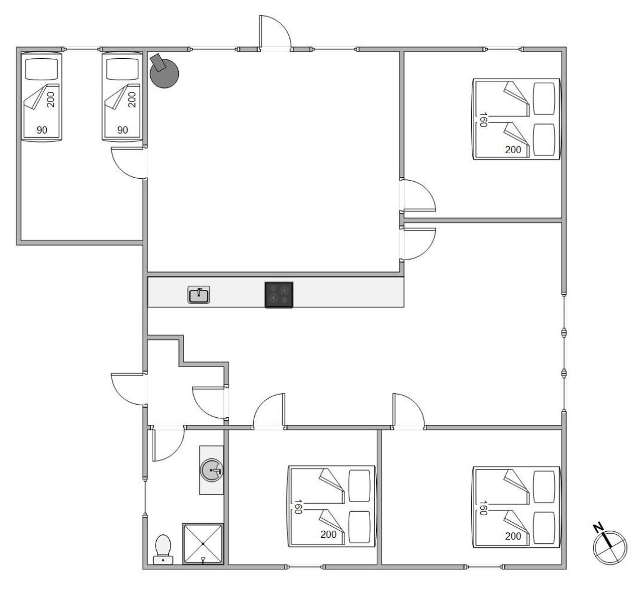
Huset er indrettet med entré, badeværelse med gulvvarme, køkken/alrum med spiseplads, stor stue med brændeovn og varmepumpe samt bordfodbold, 3 soveværelser med dobbeltsenge og et soveværelse med 2 fritstående senge.
I det attraktive sommerhusområde Lakolk sælges hyggeligt sommerhus på 120 m2. Opført i 1927/1971 samt moderniseret i 2023. Huset har et grundareal på 262 m2. Udlejning til husejer for 2025 foreløbig 152.858 kr. Opvarmning sker ved elvarme, brændeovn og varmepumpe. Antal soverum 4. Hyggelig overdækket terrasse. Kun 185 m til stranden. Kun 800 m til indkøb, restauration, pizzariaer på Lakolk Butikscenter.
Huset er indrettet med entré, badeværelse med gulvvarme, køkken/alrum med spiseplads, stor stue med brændeovn og varmepumpe samt bordfodbold, 3 soveværelser med dobbeltsenge og et soveværelse med 2 fritstående senge.
Ejendomsmæglerfirmaet Rømø-Skærbæk
Nyeste


