
solgt






solgt
Gl Skolevej 9, Kongsmark, 6792 Rømø
Flot Fritidshus beliggende midt i Kongsmark!
På rolig vej sælges hyggeligt fritidshus, opført i et plan i 1971/2001 med et samlet boligareal på 99 m2, antal soverum 3, carport på 34 m2, opvarmes ved elvarme, brændeovn(fra 2022) og varmepumpe, plastvinduer, udlejning til husejer forhør nærmere hos ejendomsmægleren- pæn opgroet have med plads til børneleg - grundarealet er på 2.367 m2.
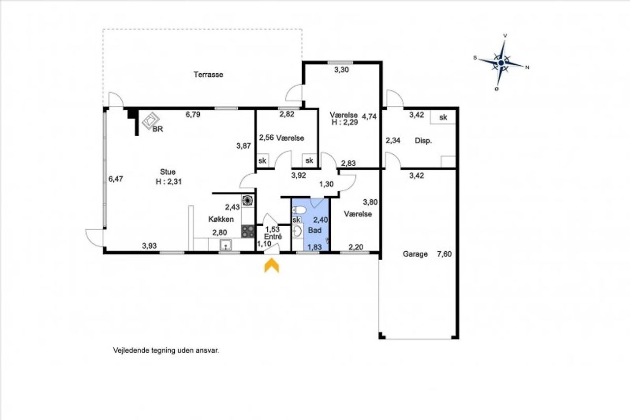
Husets indretning: Vindfang, fordelingsgang, bryggers med vaskemaskine og tørretumbler, nydeligt åbent køkken med spiseplads og opvaskemaskine, flot stor stue med brændeovn, varmepumpe og udgang til sydvendt terrasse, badeværelse med gulvvarme, 1 soveværelse med dobbeltseng, 2 soveværelser med hver 2 fritstående senge.
På rolig vej sælges hyggeligt fritidshus, opført i et plan i 1971/2001 med et samlet boligareal på 99 m2, antal soverum 3, carport på 34 m2, opvarmes ved elvarme, brændeovn(fra 2022) og varmepumpe, plastvinduer, udlejning til husejer forhør nærmere hos ejendomsmægleren- pæn opgroet have med plads til børneleg - grundarealet er på 2.367 m2.
Husets indretning: Vindfang, fordelingsgang, bryggers med vaskemaskine og tørretumbler, nydeligt åbent køkken med spiseplads og opvaskemaskine, flot stor stue med brændeovn, varmepumpe og udgang til sydvendt terrasse, badeværelse med gulvvarme, 1 soveværelse med dobbeltseng, 2 soveværelser med hver 2 fritstående senge.
Ejendomsmæglerfirmaet Rømø-Skærbæk
Nyeste



