






Drømmer du om at kombinere ferieidyl med din passion for heste? Så er dette sommerhus en sjælden perle – det eneste sommerhus på Rømø med egen hestefold og tilhørende hesteskur. Her får du en helt unik mulighed for at tage hesten med på ferie – eller skabe et rekreativt fristed, hvor du og din hest kan nyde roen, naturen og de vidunderlige omgivelser sammen.
Beliggenhed og grund:
Huset ligger yderst fredeligt for enden af en blind vej i et roligt og naturskønt sommerhusområde. Den store, kuperede grund på hele 2.507 m² er som skabt til hestehold, og den private hestefold og det praktiske hesteskur gør det let at have to heste med. Kun 2 km fra Rømøs brede sandstrand – perfekt til en ridetur i vandkanten – og 700 meter til købmand og bager.
Boligen:
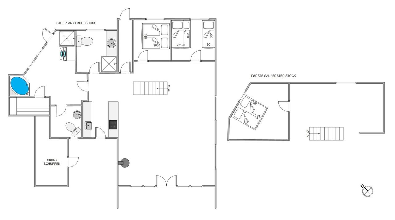
Sommerhuset er opført i 1979 og gennemgribende renoveret i 2012. Det fremstår charmerende og velholdt med flot stråtag og et samlet boligareal på 133 m². Her er lagt vægt på både komfort og hygge.
Indretning:
- Åbent og lyst køkken-alrum/stuemiljø med loft til kip
- Brændeovn og varmepumpe
- Direkte udgang til stor overdækket terrasse
- Stort badeværelse med gulvvarme, spabad og sauna
- Gæstetoilet
- Tre soveværelser: To med dobbeltsenge, ét med enkeltseng og køjesenge
Udendørsarealer:
Huset er omgivet af flere skønne nyrenoverede og vedligeholdelsesfrie terrasser og god læ. Den private hestefold er naturligt indpasset i det kuperede terræn, og hesteskuret er ideelt til læ og opbevaring. Der er god plads til både dyrehold og leg – og helt ugeneret.
Udlejning og investering:
Dancenter har estimeret en potentiel årlig lejeindtægt på 227.300 kr. ved installation af udendørs spabad. Med hestefaciliteter og unikke muligheder er dette sommerhus også interessant som nicheudlejning målrettet hesteentusiaster – et marked i vækst.
Drømmer du om at kombinere ferieidyl med din passion for heste? Så er dette sommerhus en sjælden perle – det eneste sommerhus på Rømø med egen hestefold og tilhørende hesteskur. Her får du en helt unik mulighed for at tage hesten med på ferie – eller skabe et rekreativt fristed, hvor du og din hest kan nyde roen, naturen og de vidunderlige omgivelser sammen.
Beliggenhed og grund:
Huset ligger yderst fredeligt for enden af en blind vej i et roligt og naturskønt sommerhusområde. Den store, kuperede grund på hele 2.507 m² er som skabt til hestehold, og den private hestefold og det praktiske hesteskur gør det let at have to heste med. Kun 2 km fra Rømøs brede sandstrand – perfekt til en ridetur i vandkanten – og 700 meter til købmand og bager.
Boligen:
Sommerhuset er opført i 1979 og gennemgribende renoveret i 2012. Det fremstår charmerende og velholdt med flot stråtag og et samlet boligareal på 133 m². Her er lagt vægt på både komfort og hygge.
Indretning:
- Åbent og lyst køkken-alrum/stuemiljø med loft til kip
- Brændeovn og varmepumpe
- Direkte udgang til stor overdækket terrasse
- Stort badeværelse med gulvvarme, spabad og sauna
- Gæstetoilet
- Tre soveværelser: To med dobbeltsenge, ét med enkeltseng og køjesenge
Udendørsarealer:
Huset er omgivet af flere skønne nyrenoverede og vedligeholdelsesfrie terrasser og god læ. Den private hestefold er naturligt indpasset i det kuperede terræn, og hesteskuret er ideelt til læ og opbevaring. Der er god plads til både dyrehold og leg – og helt ugeneret.
Udlejning og investering:
Dancenter har estimeret en potentiel årlig lejeindtægt på 227.300 kr. ved installation af udendørs spabad. Med hestefaciliteter og unikke muligheder er dette sommerhus også interessant som nicheudlejning målrettet hesteentusiaster – et marked i vækst.


